Код товару: FA20
Виробник:
Feniks
Характеристики
Номінальна потужність, кВт -
20
Площа опалення, м² -
200
Площа теплообміну, м² -
2.0
глибина топки, мм -
430
ширина топки, мм -
300
висота топки, мм -
500
Діаметр димоходу, мм -
160
Площа перетину борова, см² -
201
Мінімальна висота димоходу, м -
7
Котел на твердому паливі Фенікс A 20 кВт
Котел Feniks A 16 кВт - сучасний недорогий побутовий котел з високими технічними характеристиками. розроблений для роботи як у відкритих так і в закритих систем опалення. Для будь-яких типів споруд з індивідуальною системою опалення (житлові споруди, виробничі, комерційні, теплиці і т.д. )
Рекомендоване паливо:
- Всі види дров;
- Вугілля;
- Дров’яні та торф’яні брикети;
- Відходи деревообробки і.т.
Переваги котлів Feniks A 20:
- Глибока завантажувальная камера згорання;
- Товщина сталі теплообмінника - 5 мм.
- Тривалість горіння на одній закладці палива 8-12 годин (дрова), 10-15 годин (вугілля);
- Теплообмінник з великою площею теплоз’єму, який забезпечую постійно високий ККД від 83%.
- Можливість перевішування дверцят;
- Можливість здійснювати управління котлом як механічним регулятором тяги так і електронною автоматикою;
- Гарантія на герметичність котла 36 місяців.
Особливості конструкції котла Feniks A 20 кВт

- Корпус котла;
- Камера згоряння (топка);
- Конвекційна частина;
- Температурний датчик;
- Дверцята завантажувальні;
- Дверцята ревізійні;
- Кришка отвору під вентилятор;
- Патрубок прямої мережної води;
- Патрубок зворотної мережної води;
- Штуцер зливу води з котла;
- Штуцер під запобіжний клапан;
- Боров;
- Шибер тяги топочних газів;
- Колосникові грати;
- Зольник;
- Патрубок під терморегулятор;
- Водяна оболонка;
- Теплоізоляція корпуса;
- Обшива котла;
- Запобіжні дверцята;
- Лючок під терморегулятор.
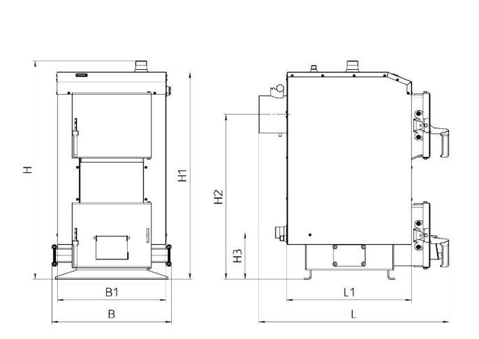
Габаритні розміри та технічні характеристики Feniks A 20 кВт:


Технічні характеристики котла
Номінальна потужність, кВт
20
Площа опалення, м²
200
Площа теплообміну, м²
2.0
Об'єм теплоносія (води) в котлі, л
40
Коефіцієнт корисної дії, %
81
Ефективний робочий тиск, МПа
0,15
Максимальний робочий тиск, МПа
0,30
Ефективна температура теплоносія, ℃
58-85
Розмір топки
глибина топки, мм
430
ширина топки, мм
300
висота топки, мм
500
об'єм топки, дм³
64
Параметри димоходу
Діаметр димоходу, мм
160
Площа перетину борова, см²
201
Мінімальна висота димоходу, м
7
Діаметр під'єднувальних патрубків
- прямої і зворотної мережевої води (Ду), мм
40
- під запобіжний клапан (Ду), мм
15
Розмір завантажувального отвору
висота, мм
250
ширина, мм
260
Габаритні розміри
висота,мм
1015
ширина, мм
510
довжина, мм
870
маса, кг
150
Рекомендовані товари










