Код товару: FСM12
Виробник:
Feniks
Характеристики
Номінальна потужність, кВт -
12
Площа опалення, м² -
120
Площа теплообміну, м² -
1,4
глибина топки, мм -
400
ширина топки, мм -
326
об'єм топки, дм³ -
61
Діаметр димоходу, мм -
160
Площа перетину борова, см² -
201
Мінімальна висота димоходу, м -
5
Котел на твердому паливі Фенікс C 12 кВт
Котел Feniks C 12 кВт розроблений для роботи як у відкритих так і в закритих систем опалення. Для будь-яких типів споруд з індивідуальною системою опалення (житлові споруди, виробничі, комерційні, теплиці і т.д. )
Рекомендоване паливо:
- Всі види дров;
- Вугілля;
- Дров’яні та торф’яні брикети;
- Відходи деревообробки і.т.
Переваги котлів Feniks С 12 кВт:
- 4-х ходовий теплообмінник;
- Об’ємна камера згорання;
- Товщина сталі теплообмінника - 6 мм.
- Тривалість горіння на одній закладці палива 12-15 годин (дрова), 18-24 годин (вугілля);
- Теплообмінник з великою площею теплоз’єму, який забезпечую постійно високий ККД на рівні 86%.
- Можливість перевішування дверцят;
- Наявності на дверцятах жаровідсікаючої цегли для зменшення теплового тиску на двері;
- Можливість здійснювати управління котлом як механічним регулятором тяги так і електронною автоматикою;
- Гарантія на герметичність котла 36 місяців.
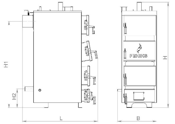
Особливості конструкції та габаритні розміри котла Feniks С 12 кВт:

- Корпус котла;
- Камера згоряння (топка);
- Конвекційна частина (теплообмінник);
- Дверцята конвекційної частини котла;
- Дверцята завантажувальні;
- Дверцята ревізійні (в серії «plus» мають отвір з кріпленням для горілки);
- Кришка отвору під вентилятор;
- Патрубок прямої мережної води;
- Патрубок зворотної мережної води;
- Штуцер зливу води з котла;
- Штуцер під запобіжний клапан;
- Боров;
- Шибер тяги топочних газів;
- Колосникові грати;
- Зольник;
- Патрубок під терморегулятор;
- Водяна оболонка;
- Теплоізоляція корпуса;
- Блок автоматики управління;
- Вентилятор;
- Лючок під терморегулятор.


Комплект поставки:
- Котел в зборі 1 шт.
- Комплект для чищення котла 1 шт.
- Керівництво з експлуатації та паспорт 1 шт.
- Запобіжний клапан (до 98кВт) (17 -35кВт – 2 МПа, 50 -98 кВт – 2, 5 МПа ) 1 шт.
- Блок автоматичного управління - В залежності від вибору комплектації
- Вентилятор - В залежності від вибору комплектації
- Механічний регулятор тяги - В залежності від вибору комплектації
Технічні характеристики котла
Номінальна потужність, кВт
12
Площа опалення, м²
120
Площа теплообміну, м²
1,4
Об'єм теплоносія (води) в котлі, л
65
Коефіцієнт корисної дії, %
85
Ефективний робочий тиск, МПа
0,15
Максимальний робочий тиск, МПа
0,20
Ефективна температура теплоносія, ℃
60-90
Розмір топки
глибина топки, мм
400
ширина топки, мм
326
об'єм топки, дм³
61
Параметри димоходу
Діаметр димоходу, мм
160
Площа перетину борова, см²
201
Мінімальна висота димоходу, м
5
Діаметр під'єднувальних патрубків
- прямої і зворотної мережевої води (Ду), мм
50
- під запобіжний клапан (Ду), мм
15
Розмір завантажувального отвору
висота, мм
237
ширина, мм
326
Габаритні розміри
висота,мм
1335
ширина, мм
510
довжина, мм
850
маса, кг
240
Рекомендовані товари












