Промисловий котел на твердому паливі Фенікс M 250 кВт
Промисловий твердопаливний котел Feniks M Plus 400 кВт це надійний та економічний пристрій, що основою опалювальної системи від української компанії з Чернігова, визнаної експертом у цій галузі. Модель має ряд переваг, таких як містка топка, сучасна автоматика та продуманість усіх деталей від перевезення до обслуговування.
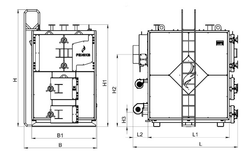
Котел має компактний прямокутний корпус, який зручний для транспортування та встановлення на місці. Він обладнаний водонаповненими колосниками та ефективним жаротрубним теплообмінником. На задній панелі приладу розташовані турбіни та димохідний патрубок, а на передній панелі дверцята для доступу до зольнику, топки та теплообмінника. Дверцята теплообмінника двостулкові, що полегшує сезонне чищення і забезпечує доступ до всіх труб теплообмінника.
Рекомендоване паливо:
- Всі види дров;
- Вугілля;
- Дров’яні та торф’яні брикети;
- Відходи деревообробки і.т.
Переваги котлів Feniks M 250 квт:
- теплообмінник великої площі теплопередачі;
- Об’ємна камера згорання;
- Товщина сталі теплообмінника - 8 мм.
- Тривалість горіння на одній закладці палива 12-15 годин (дрова), 18-24 годин (вугілля);
- Гарантія на герметичність котла 36 місяців.
Особливості конструкції та габаритні розміри котла Feniks M 250 кВт:


Комплект поставки:
- Котел в зборі - 1 шт.
- Комплект для чищення котла - 1 шт.
- Керівництво з експлуатації - та
- Паспорт - 1 шт.
- Запобіжний клапан - 1 шт.
- Блок автоматичного управління 1 шт.
- Вентилятор - 3 шт.







