Код товару: FDM400
Виробник:
Feniks
Характеристики
Номінальна потужність, кВт -
400
Площа опалення, м² -
4000
Площа теплообміну, м² -
40,9
глибина топки, мм -
1400
ширина топки, мм -
1070
об'єм топки, дм³ -
2092
Діаметр димоходу, мм -
450
Площа перетину борова, см² -
1590
Мінімальна висота димоходу, м -
12
Промисловий котел на твердому паливі Фенікс D 400 кВт
Котел Feniks D 400 квт встановлюються у котельнях адміністративних, виробничих будівель, опалювальних котельних ЖКГ, бізнес-центрах, багатоквартирних будинках і т.д.. Застосовуються для опалення, гарячого водопостачання та вентиляції промислових завдань, цехів, гаражів, теплиць, виробничих баз, будівельних містечок, лікарень, дитсадків, шкіл, клубів, санаторіїв, заводів, тваринницьких ферм, магазинів, сільгосп підприємств та іншого.
Рекомендоване паливо:
- Всі види дров;
- Вугілля;
- Дров’яні та торф’яні брикети;
- Відходи деревообробки і.т.
Переваги котлів Feniks D 400 квт:
- 4-х ходовий вертикальний теплообмінник;
- Об’ємна камера згорання;
- Товщина сталі теплообмінника - 8 мм.
- Тривалість горіння на одній закладці палива 12-15 годин (дрова), 18-24 годин (вугілля);
- Теплообмінник з великою площею теплоз’єму, який забезпечую постійно високий ККД на рівні 86%.
- Гарантія на герметичність котла 36 місяців.
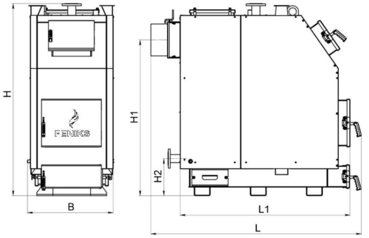
Особливості конструкції та габаритні розміри котла Feniks D 400 кВт:

- Корпус котла;
- Конвекційна частина (теплообмінник);
- Конвекційна частина (теплообмінник);
- Дверцята конвекційної частини котла;
- Дверцята ревизійні;
- Дверцята завантажувальні;
- Дверцята зольника;
- Дверцята бокові;
- Патрубок прямої мережі води;
- Патрубок зворотньої мережі води;
- Штуцер зливу води з котла;
- Штуцер під запобіжний клапан;
- Боров;
- Шибер тяги топочних газів;
- Зольник
- Колосникові грати;
- Водяна оболонка;
- Теплоізоляція корпуса;
- Вентилятор;
- Блок автоматики управління;


Комплект поставки:
- Котел в зборі - 1 шт.
- Комплект для чищення котла - 1 шт.
- Керівництво з експлуатації - та
- Паспорт - 1 шт.
- Запобіжний клапан - 1 шт.
- Блок автоматичного управління 1 шт.
- Вентилятор - 2 шт.
Технічні характеристики котла
Номінальна потужність, кВт
400
Площа опалення, м²
4000
Площа теплообміну, м²
40,9
Об'єм теплоносія (води) в котлі, л
775
Коефіцієнт корисної дії, %
85
Ефективний робочий тиск, МПа
0,20
Максимальний робочий тиск, МПа
0,25
Ефективна температура теплоносія, ℃
60-90
Розмір топки
глибина топки, мм
1400
ширина топки, мм
1070
об'єм топки, дм³
2092
Параметри димоходу
Діаметр димоходу, мм
450
Площа перетину борова, см²
1590
Мінімальна висота димоходу, м
12
Діаметр під'єднувальних патрубків
- прямої і зворотної мережевої води (Ду), мм
125 (фл)
- під запобіжний клапан (Ду), мм
2x50
Розмір завантажувального отвору
висота, мм
550
ширина, мм
650
Габаритні розміри
висота,мм
2060
ширина, мм
1345
довжина, мм
3113
маса, кг
3064





